RESOURCE CENTER > CASE STUDIES
Reciprocating Lift Case Study | Pit-less Through-Floor Installation for Factory Renovation
POSTED: 4/23/2026
Client Need
Client: Suzhou Liliang Construction & Decoration Engineering Co., Ltd. (Factory renovation specialist)
Project: 2 reciprocating lifts for a Jiaxing factory
Key challenges: Floor penetration + basement installation + 4.65m suspended column + 3 stops + C‑shaped access + only 2650mm beam spacing
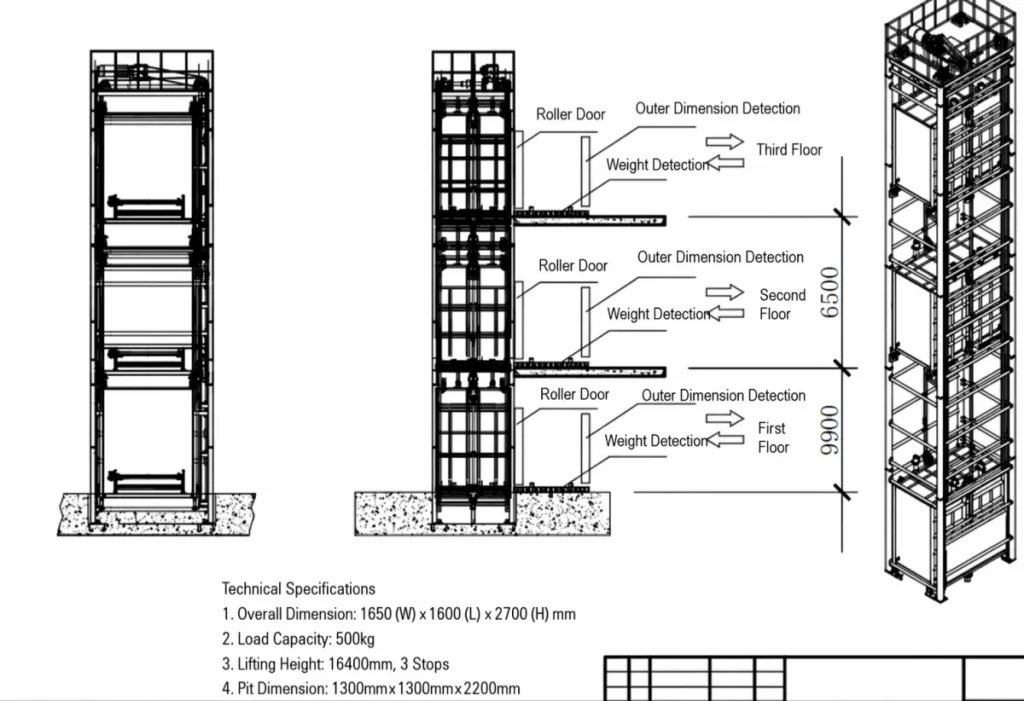
Liliang needed to vertically transport construction materials from basement to three working floors. During construction, the plan changed: instead of a ground‑floor pit, the floor was opened and the lift must be anchored to the basement floor (4.65m below first floor), creating a suspended column. Beam spacing is just 2.65m square – extremely tight. Requires 3 stops, C‑shaped access (1600mm direction), 500kg capacity, 16.4m travel.
Core Specifications
| Parameter | Specification |
|---|---|
| Equipment name | Reciprocating lift |
| Quantity | 2 units |
| Rated load capacity | 500 kg |
| Travel height | 16.4 m (16400 mm) |
| Number of stops | 3 stops / 3 levels |
| Car dimensions (W×D×H) | 1600 × 1600 × 2700 mm |
| Shaft dimensions (W×D×H) | 2540 × 1800 × 21170 mm |
| Access direction | C-shaped access along 1600mm direction |
| Structure type | Pit-less through-floor (basement garage installation, columns extended 4650mm downward) |
| Drive motor | 9.2 kW SEW motor with brake |
| Lifting speed | 0-40 m/min, variable frequency drive |
| Main frame | F120 frame + J100×50×4mm connectors |
| Top frame material | J100×50×4mm |
| Car construction | 100×50×4mm rectangular tube + 3mm flat panel |
| Car guide rails | T90 + fasteners |
| Counterweight guide rails | TK5A + guide shoes |
| Chain | 16A |
| Fall arrest device | Safety gear × 2 units |
| Buffer | Polyurethane buffer |
| Top frame guardrail | 30×30mm square tube |
| Maintenance ladder | Access ladder for top platform |
| Color | RAL 7035 light grey |
| Pit | None (direct mounting on basement garage floor) |
| Special requirement | Floor slab opened, basement floor to first floor height 4650mm, extended columns through floor slab for anchoring |
| Order date | February 8, 2026 |
| Shipment date | March 8, 2026 |
Solution
- Pit‑less through‑floor design: Columns extended 4.65m downward through floor slab, anchored to basement floor – no civil pit needed.

- High‑power drive: 9.2kW SEW motor with brake + VFD (0‑40m/min) – ample power reserve.
- Dual mechanical fall protection: 2 safety gears + polyurethane buffer.
- Compact layout: Car W1600×L1600×H2700mm, T90 rails, 16A chain, RAL7035 finish.

- C‑shaped access: Entry from one side, exit from adjacent side – ideal for tight spaces.

If you want to customize your material handling equipment, please contact us.

















